Nie zastanawiaj się!
Zostaw nam do siebie kontakt!

Dołącz do grona naszych 421 zadowolonych klientów
Bez spamu po prostu zostaw nam kontakt i otrzymaj praktyczny przewodnik + najczęstsze błędy, których warto uniknąć.

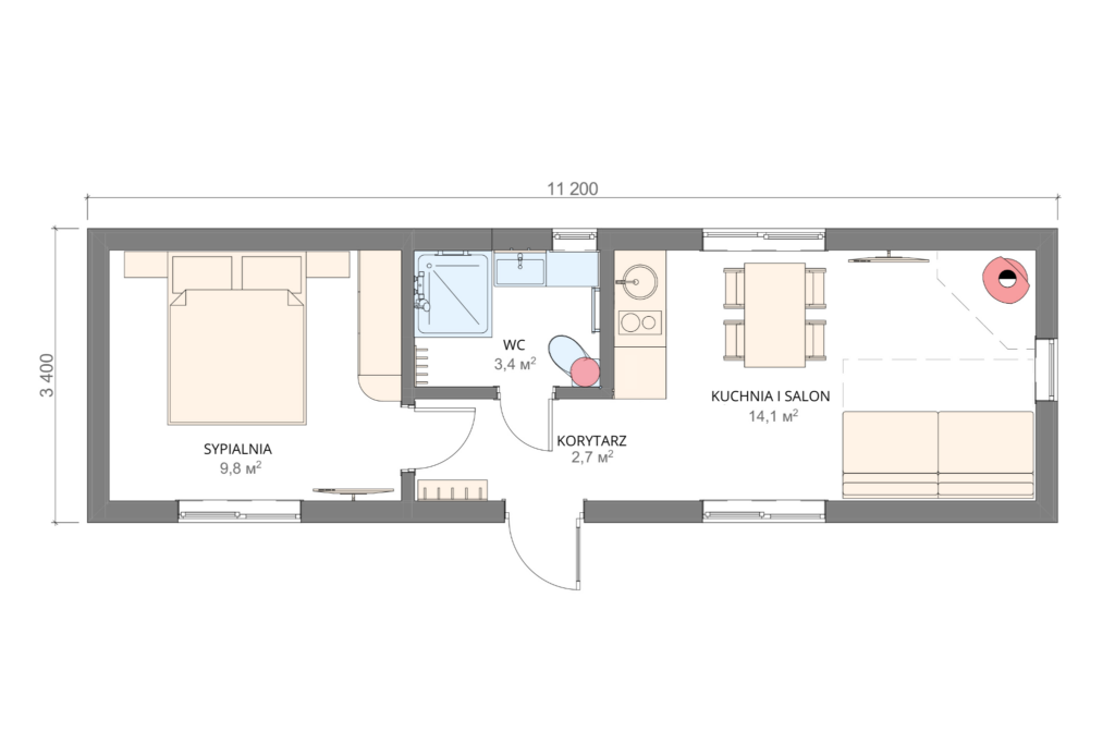
NDM MARIA

0
Powierzchnia domu
0
Powierzchnia użytkowa
0
Ilość pokoi
0
Ilość łazienek

Wybierz wariant dopasowany do siebie

0
NDM STANDARD
Izolacja dachu 200 mm z wełny mineralnej
Izolacja ścian 150 mm z wełny mineralnej
Izolacja pod podłogą 200 mm z wełny mineralnej
Pokrycie dachu blachą trapezową
Fasada – deska impregnowana i profil metalowy
Wnętrze- ściany z imitacją drewna
Wnętrze- sufit z imitacją drewna
Podłoga – płyta OSB 22 mm
Instalacja elektryczna z gniazdkami
Zestaw okien WDS
Łazienka – ciepła podłoga, płytki w strefie prysznicowej, przegroda prysznicowa, instalacja, wisząca toaleta, podstawowa umywalka z szafką, lustro z oświetleniem
0
NDM PLUS
Izolacja dachu 250 mm z wełny mineralnej
Izolacja ścian 200 mm z wełny mineralnej
Izolacja podłogi 250 mm z wełny mineralnej
Pokrycie dachu blachą trapezową
Fasada – deska impregnowana i profil metalow
Wnętrze – ściany z imitacją drewna
Wnętrze – sufit z imitacją drewna
Podłoga – płyta OSB 22 mm
Podłoga – panel AGT
Instalacja elektryczna z gniazdkami
Grzejniki elektryczne ze sterowaniem WIFI
Klimatyzator falownikowy BTU 12
Zestaw okien WDS – laminowanie jednostronnie
Łazienka – ciepła podłoga, płytki w strefie prysznicowej, przegroda prysznicowa, instalacja, wisząca toaleta, umywalka z szafką w zabudowie, lustro z oświetleniem
      0
      NDM PREMIUM
      Izolacja dachu 250 mm z wełny mineralnej
Izolacja ścian 200 mm z wełny mineralnej
Izolacja podłogi 250 mm z wełny mineralnej
Pokrycie dachu blachą giętą na rąbek
Fasada – deska impregnowana i profili na rąbek
Wnętrze – wykończone płytami kartongips
Podłoga – płyta OSB 22 mm
Podłoga – panel AGT
Podłoga – płytki ceramiczne
Instalacja elektryczna z gniazdkami
Grzejniki elektryczne ze sterowaniem WIFI
Rekuperacja
Klimatyzator falownikowy BTU 18
Siatka ocynkowana w celu ochrony przed gryzoniami
    Siatka przeciw komarom
    Kominek – szkło hartowane na podłodze, dekoracja ścian płytkami klinkierowymi, system kominkowy
    Zestaw okien WDS – laminowanie dwustronne.
    Dodatkowe wyjście do agregatu
    Deska tarasowa kompozyt DPK
    Łazienka – ciepła podłoga, płytki w strefie prysznicowej, system otwarty, instalacja, wisząca toaleta, umywalka z szafką w zabudowie, lustro z oświetleniem

Wybierz bezpłatnie w pakiecie domu

Kolory elewacji

Wybierz styl, który najlepiej pasuje do Twojego otoczenia i charakteru inwestycji.

NDM BLACK

NDM SILVER

NDM DARK

NDM NATURE

Kolory wnętrz

Wybierz klimat, w którym chcesz mieszkać.

NDM GLAM

NDM LIGHT

NDM NATURAL

NDM WHITE

Nie zastanawiaj się!
Zostaw nam do siebie kontakt!

Spodobał Ci się ten projekt, ale coś jeszcze chciałbyś zmienić?